• $600,000List Price
  • ActiveStatus
  • 95Number of Photos
  • 27.831253Latitude
  • 17960 Gulf BoulevardAddress
  • Gulf BoulevardStreet
  • 119Unit Number
  • Redington ShoresTown
  • FLState
  • 33708Zip
  • PinellasCounty
  • ResidentialProperty Type
  • TB8477087MLS Number
  • 2Bedrooms
  • 2Full Bath
  • 1Half Baths
  • 1,237Square Feet
  • 1989Year Built
  • 0.02Acreage

Listing Tools

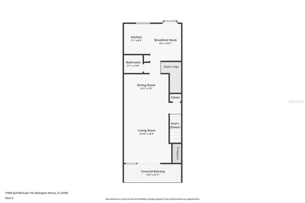
Experience coastal living at its finest in this beautiful beachfront townhome in Redington Shores, where stunning Gulf views and effortless beach access create the perfect seaside retreat. This spacious 2-bedroom, 2.5-bath residence offers a thoughtfully designed three-level layout ideal for both everyday living and vacation-style enjoyment. The first level features a private garage with ample storage for vehicles and beach gear. On the second floor, you'll find an open-concept living room, dining area, and well-appointed kitchen, along with a convenient half bath. Step out onto the large balcony to relax, entertain, and take in the refreshing sea breeze. GuThe third level hosts the primary suite with its own private balcony overlooking the Gulf, a generous second bedroom, and a full laundry room for added convenience. Wake up to breathtaking water views and unwind each evening with spectacular sunsets right from your home. Residents enjoy a sparkling community pool and easy, direct access to the sugar-sand beaches just steps away. The HOA provides exceptional value, covering cable TV, internet, insurance, water, sewer, trash, and exterior maintenance-allowing for truly low-maintenance coastal living. Ideally located near popular restaurants, shopping, and local attractions, this townhome offers the perfect blend of relaxation, convenience, and prime beachfront location.

Location

Listings courtesy of StellarMLS as distributed by MLS GRID. Based on information submitted to the MLS GRID as of March 10, 2026 8:04 AM EDT. All data is obtained from various sources and may not have been verified by broker or MLS GRID. Supplied Open House Information is subject to change without notice. All information should be independently reviewed and verified for accuracy. Properties may or may not be listed by the office/agent presenting the information. IDX information is provided exclusively for consumers’ personal noncommercial use and may not be used for any purpose other than to identify prospective properties consumers may be interested in purchasing. The data is deemed reliable but is not guaranteed by MLS GRID. The use of the MLS GRID Data may be subject to an end user license agreement.

Hi there! How can we help you?

Contact us using the form below or give us a call.

Send Us A Message:

By submitting this form I agree to receive marketing and customer service calls and text messages from Michael Saunders & Company. To opt out, you can reply 'stop' at any time or click the unsubscribe link in the emails. Consent is not a condition of purchase. Msg/data rates may apply. Msg frequency varies. Privacy Policy.

Do not fill in this field:

This site is protected by reCAPTCHA and the Google Privacy Policy and Terms of Service apply.

Hi there! How can we help you?

Contact us using the form below or give us a call.

Send Us A Message:

Do not fill in this field:

This site is protected by reCAPTCHA and the Google Privacy Policy and Terms of Service apply.

Hi there! How can we help you?

Contact us using the form below or give us a call.

Send Us A Message:

Do not fill in this field:

This site is protected by reCAPTCHA and the Google Privacy Policy and Terms of Service apply.

Do not fill in this field:

This site is protected by reCAPTCHA and the Google Privacy Policy and Terms of Service apply.

Do not fill in this field:

This site is protected by reCAPTCHA and the Google Privacy Policy and Terms of Service apply.

Do not fill in this field:

This site is protected by reCAPTCHA and the Google Privacy Policy and Terms of Service apply.

$

Do not fill in this field:

This site is protected by reCAPTCHA and the Google Privacy Policy and Terms of Service apply.