• $289,900List Price
  • ActiveStatus
  • 37Number of Photos
  • 27.902095Latitude
  • 5001 Barnstead DriveAddress
  • Barnstead DriveStreet
  • RiverviewTown
  • FLState
  • 33578Zip
  • HillsboroughCounty
  • ResidentialProperty Type
  • TB8466251MLS Number
  • 3Bedrooms
  • 2Full Bath
  • 1Half Baths
  • 1,790Square Feet
  • 2006Year Built
  • 0.05Acreage

Listing Tools

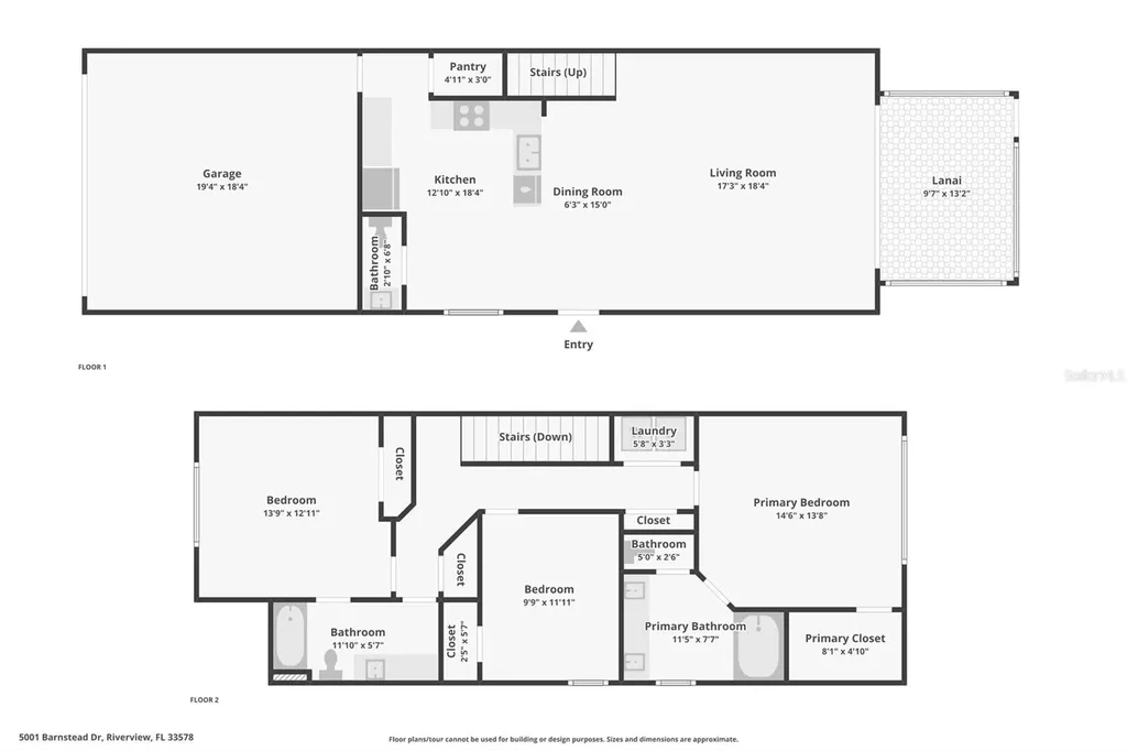
Move in right away! Furnishings optional Located in the desirable Valhalla community, this spacious 3-bedroom, 2.5-bath townhome offers one of the larger floor plans and includes a 2-car attached garage. Ideally situated in the Brandon/Valrico area, you'll enjoy quick access to major commuting routes, shopping, and dining. The open-concept layout features a bright great room that overlooks a screened lanai-perfect for relaxing or entertaining. The kitchen offers ample space with a breakfast nook, closet pantry, and a convenient half bath on the main level. Upstairs, the primary suite includes a large walk-in closet and an en-suite bath with dual sink vanity. Two generously sized secondary bedrooms, a full bathroom, and a laundry closet complete the second floor. The HOA covers basic cable, water, sewer, trash, and lawn maintenance, and residents also enjoy access to the community pool for easy, low-maintenance living.

Location

Listings courtesy of StellarMLS as distributed by MLS GRID. Based on information submitted to the MLS GRID as of March 7, 2026 3:30 AM EST. All data is obtained from various sources and may not have been verified by broker or MLS GRID. Supplied Open House Information is subject to change without notice. All information should be independently reviewed and verified for accuracy. Properties may or may not be listed by the office/agent presenting the information. IDX information is provided exclusively for consumers’ personal noncommercial use and may not be used for any purpose other than to identify prospective properties consumers may be interested in purchasing. The data is deemed reliable but is not guaranteed by MLS GRID. The use of the MLS GRID Data may be subject to an end user license agreement.

Hi there! How can we help you?

Contact us using the form below or give us a call.

Send Us A Message:

By submitting this form I agree to receive marketing and customer service calls and text messages from Michael Saunders & Company. To opt out, you can reply 'stop' at any time or click the unsubscribe link in the emails. Consent is not a condition of purchase. Msg/data rates may apply. Msg frequency varies. Privacy Policy.

Do not fill in this field:

This site is protected by reCAPTCHA and the Google Privacy Policy and Terms of Service apply.

Hi there! How can we help you?

Contact us using the form below or give us a call.

Send Us A Message:

Do not fill in this field:

This site is protected by reCAPTCHA and the Google Privacy Policy and Terms of Service apply.

Hi there! How can we help you?

Contact us using the form below or give us a call.

Send Us A Message:

Do not fill in this field:

This site is protected by reCAPTCHA and the Google Privacy Policy and Terms of Service apply.

Do not fill in this field:

This site is protected by reCAPTCHA and the Google Privacy Policy and Terms of Service apply.

Do not fill in this field:

This site is protected by reCAPTCHA and the Google Privacy Policy and Terms of Service apply.

Do not fill in this field:

This site is protected by reCAPTCHA and the Google Privacy Policy and Terms of Service apply.

$

Do not fill in this field:

This site is protected by reCAPTCHA and the Google Privacy Policy and Terms of Service apply.